2 min read

Bent Sheet Metal Cart

Designed and documented a fully sheet-metal pit cart for FRC Team 1086.
Parts were CNC laser cut and CNC brake-formed from 0.125” 5052 aluminum by our sheet metal sponsor, then assembled by the team.

The structure relies on folded geometry for stiffness rather than tube framing.


CAD

CAD render of pit cart structure.
CAD render of pit cart structure.
CAD render showing robot and bumper packaging.
CAD render showing robot and bumper packaging.

Fabricated Cart

Laser-cut and brake-formed panels flat-packed for transport.
Laser-cut and brake-formed panels flat-packed for transport.
Finished cart in shop.
Finished cart in shop.
Robot on cart at competition.
Robot on cart at competition.

Design Notes

  • Material: 0.125” 5052 aluminum sheet
  • Manufacturing: CNC laser cutting + CNC press brake forming
  • Fastening: Riveted + bolted sheet metal structure
  • Modular bumper storage
  • Integrated handle structure
  • Caster-mounted base

The structure uses flanged panels and bent geometry for rigidity.
Side walls and trays were designed with proper bend radii, corner reliefs, and hole spacing appropriate for 5052-H32.


Manufacturing Workflow

  1. Modeled flat patterns with bend allowances for 0.125” 5052.
  2. Produced detailed manufacturing drawings (hole patterns, bend callouts, reliefs).
  3. Sent DXFs and drawing package to sponsor.
  4. Parts were laser cut and formed on a CNC brake.
  5. Team assembled using rivets and hardware.

This project was also an opportunity to develop proper manufacturing drawing practices:

  • Clear bend direction notation
  • Inside radius callouts
  • Pattern detail views
  • Tolerance conventions

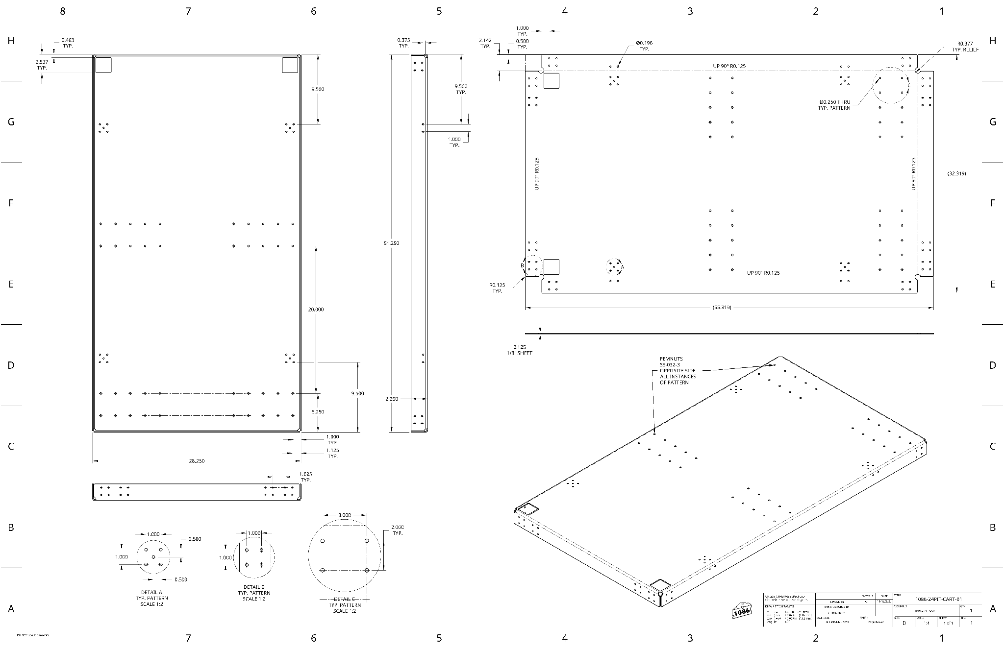
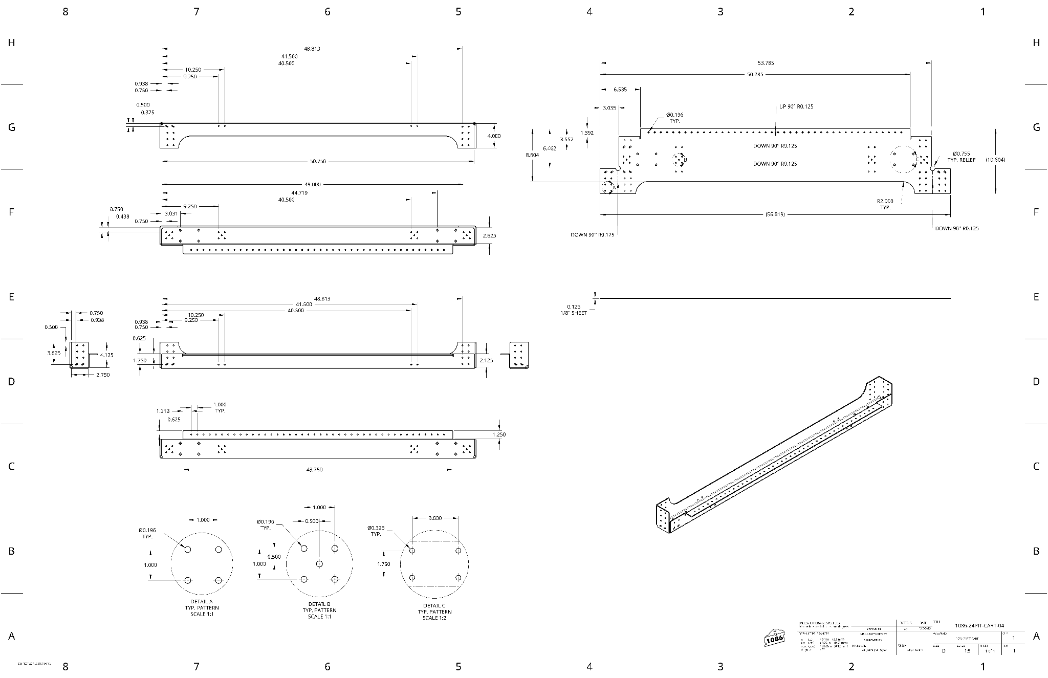
Drawings

View selected manufacturing drawings
Cart base drawing.
Cart base drawing.
Cart tray drawing.
Cart tray drawing.
Side wall structural drawing.
Side wall structural drawing.